PLAN
- ROOM PLAN
- 全邸南向き、
開放的なゆとりの住空間を実現。
豊かな陽光と爽やかな風に満たされる
全邸南向きの住戸。1フロア2邸のレイアウトにより
全邸角住戸のプライバシー性
を高めています。
ゆとりの専有面積を確保し、
開放的で心地よい住空間を実現しました。
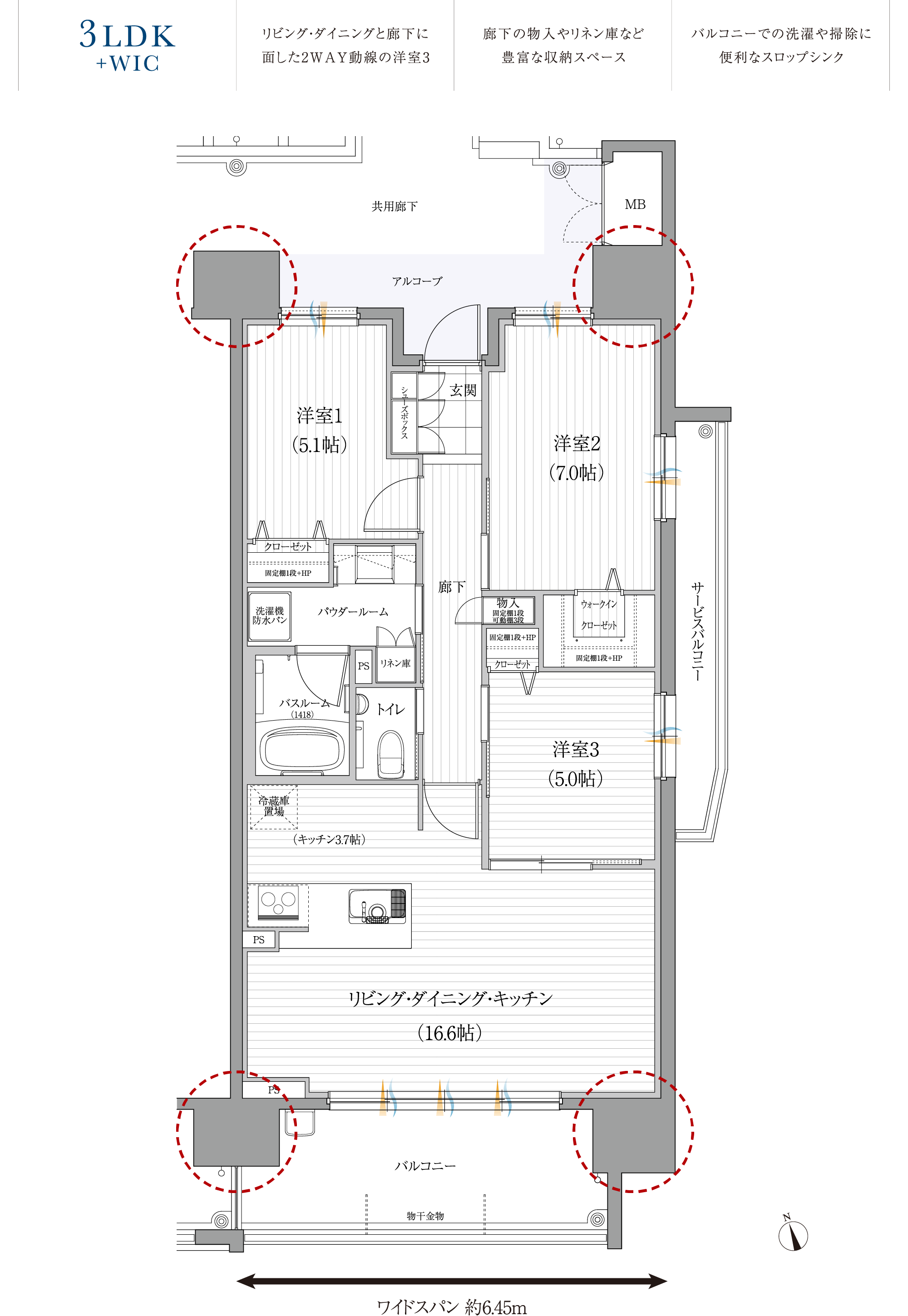
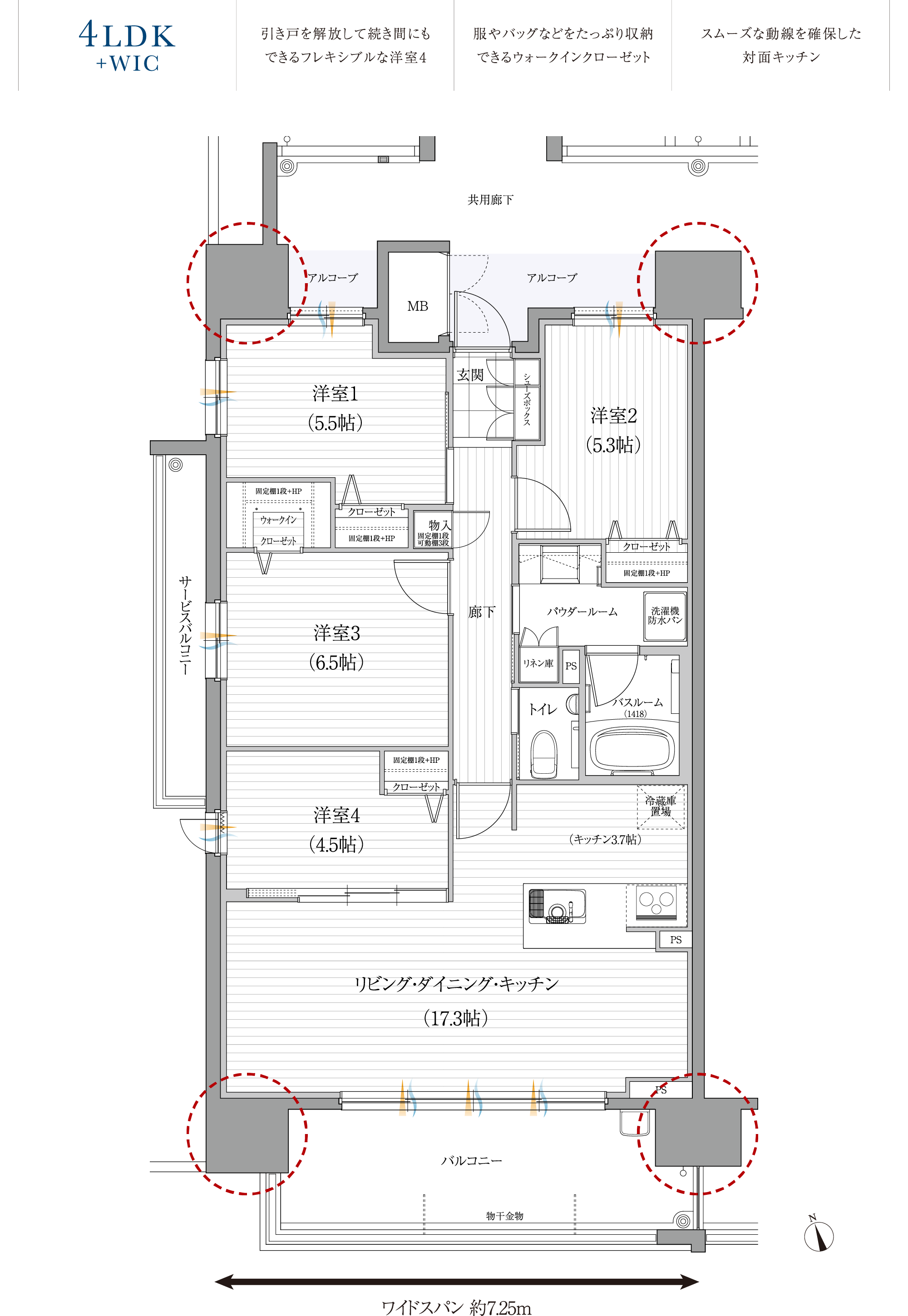
- 全邸南向き
- 1フロア2邸・全邸角住戸
- ゆとりの専有面積
- 南面ワイドリビング
- センターオープンサッシ
- アウトポール設計
早期にご来場いただくと、自分の好みに合わせて
お部屋をカスタマイズいただけます。
その他、キッチン・パウダールーム・トイレなど、
様々なオプションをご用意しています。
※マンション階数により、お申込み期間に限りがあります。※変更内容によっては有償工事となる場合がございます。
詳しくは弊社スタッフへお尋ねください。※掲載の写真は参考写真・イメージです。
※掲載の間取り図面・設備仕様は開発段階のもので、設計・施工上の都合により変更する場合があります。また家具・調度品は販売価格に含まれません。※方位記号は若干誤差があります。正確な方位については設計図書でご確認ください。※セレクトプランへの対応は期間限定となります。対応可能な期間は階数により異なります。詳しくは係員にお尋ねください。





